The rugged Ecosure 15,000 storage tank provides value-for-money, high capacity storage without compromising quality. Made only from tank grade MDPE, this industrial strength tank is rotationally moulded from a one piece mould and comes with a 10 year guarantee against manufacturing defects. It is ideal for commercial or agricultural use. Guaranteed frost-proof, the latest UV stabilisation package and strict ISO 9001 : 2015 quality control standards ensure durability. Delivery to mainland England UK is included in the price.

The tank comes with a 24" screw-down lid for ease of access and inspection. A 2" plastic threaded male outlet is supplied loose as standard, but the tank will accept up to 6" flanged outlets. A 2" plastic shut-off valve is also supplied free of charge if required. A range of optional extras are available, such as a 16" lockable lid, plastic tank connectors (up to 4") and brass tank connectors (up to 3"), Essex flanges, isolation valves and ball valves with floats. Four upstands, located at the top of the tank, allow float valves to be installed without reducing the volume of liquid stored. We can provide a full fitting service if required.

All of our Ecosure tanks are available in different ranges. Check out our Liquid Fertiliser, Sprayer, Molasses and Total Access tanks.


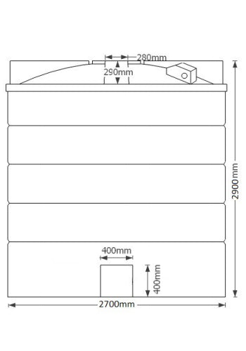
15,000 Water Tank Dimensions
Height 2900mm
Diameter 2700mm
Weight 300kg
Capacity 15,000 litres / 3300 gallon
Inlet Upto 6"
Outlet Upto 6"
Material MDPE

10 Year Manufacturer’s Warranty Against Manufacturing Defects

Our extra-large water tanks come with a 10-year manufacturer’s warranty against manufacturing defects, giving you confidence that your investment is built to last.

This warranty covers faults in materials and workmanship that occur under normal use, ensuring long-term reliability and performance from your tank.

What this means for you

  • Ten years of protection from the date of purchase
  • Coverage against manufacturing defects
  • Built for heavy-duty, high-capacity use
  • Backed by expert support

Each tank is constructed from premium grade materials and thoroughly tested to meet demanding conditions, so you can trust in its durability from day one.

If a qualifying issue arises during the warranty period, our team will guide you through the process and determine the best solution, whether that’s repair or replacement - in line with warranty terms.

What are your water tanks made of?

All Ecosure water tanks are manufactured from high quality Medium Density Polythylene (MDPE). This strong durable material is weather and impact resistant.

Can they be installed underground?

We manufacture a range of water tanks specifically design to be installed underground. Available in non-potable and potable versions.

How do I get the water out?

Each tank has brass outlet moulded into them during the manufacturing process. This outlet can be used to attached a tap or shut off valve. The size of the outlet depends on the size of the tank.

How do I gain access to the tank?

Each tank is fitted with a vented lid and range from 9'' for our smaller baffled tanks and 14'' or 16'' for our larger tanks. Some are available as lockable lids. We also produce a unique range of Total Access Water Tanks where the entire top of the tank canbe removed and replaced.

What is the return policy?

Online purchases may be returned via a major parcel carrier. Read our full returns policy.

Translation missing: en.general.search.loading